Głogowska 73 Poznań Polska
Rejon: Łazarz
Typ: lokal użytkowy
Cena: 3 360,00 zł netto
Stawka za metr: 50,00 zł
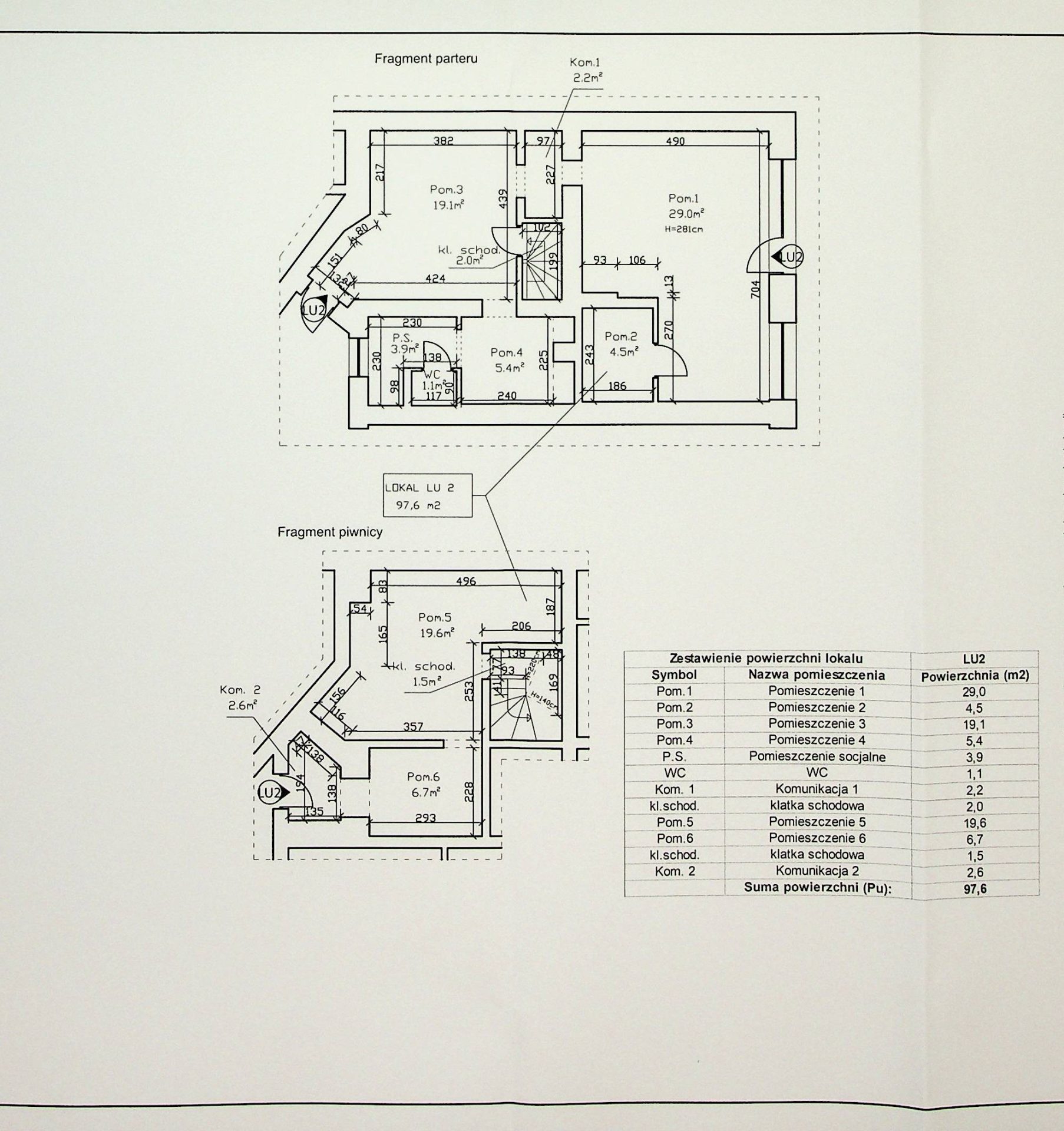
Powierzchnia: 67,20 m2
Powierzchnia przynależna: 30,40 m2
Piętro: parter
Typ zabudowy: kamienica
Przeznaczenie lokalu: Handlowo-usługowe, Biurowe
Miejsce parkingowe: na ulicy
Wejście: z ulicy
Media: energia elektryczna, wod-kan
Rodzaj własności: własność
Typ kaucji: trzymiesięczna
Oferujemy do wynajmu atrakcyjny lokal użytkowy usytuowany na parterze w budynku przy ul. Głogowskiej 73 o łącznej powierzchni 97,60 m2, na którą składa się:
– parter o powierzchni 67,20 m2
– piwnica o powierzchni 30,40 m2
Stawka czynszu za powierzchnię piwnicy płatna dodatkowo w wysokości 25% stawki głównej.
Lokal idealnie nadaje się na prowadzenie działalności handlowo – usługowej lub biurowej.
Lokal znajduje się w budynku wspólnoty mieszkaniowej.
Lokal wyposażony jest w następujące instalacje:
– elektryczną
– wodno-kanalizacyjną
Możliwość zawarcia umowy najmu na czas oznaczony 5 /pięciu/ lat lub na wniosek Klienta na czas nieoznaczony.
Podana w ogłoszeniu cena najmu jest kwotą netto.
Uwaga!
Wynajmujący informuje, że na dzień ogłoszenia nie jest w posiadaniu wiedzy na temat przewodów kominowych w lokalu.
![]() |
W celu dokonania oględzin lokalu prosimy o kontakt: |
|
Punkt Obsługi Klienta nr 5 |
||
ul. Nehringa 2, 60-247 Poznań |
||
tel. 61 415-87-05 lub 570-335-488 |
Opiekun oferty
Patrycja Fudalewska - Jasińska
Telefon
Telefon 2