Szamarzewskiego 21 Poznań Polska
Rejon: Jeżyce
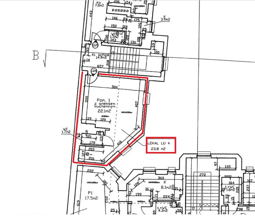
Typ: lokal użytkowy
Cena: 1 071,00 zł netto
Stawka za metr: 45,00 zł
Powierzchnia: 23,80 m2
Piętro: poddasze
Typ zabudowy: kamienica
Przeznaczenie lokalu: Handlowo-usługowe, Biurowe
Miejsce parkingowe: na ulicy
Wejście: z klatki schodowej
Media: woda, prąd, kanalizacja, centralne ogrzewanie
Rodzaj własności: własność
Typ kaucji: trzymiesięczna
Oferujemy do wynajmu atrakcyjny lokal użytkowy usytuowany na poddaszu w wyremontowanej kamienicy przy ul. Szamarzewskiego 21 o łącznej powierzchni 23,80 m2
Lokal idealnie nadaje się na prowadzenie działalności biurowej.
Lokal znajduje się w budynku komunalnym.
Lokal wyposażony jest w następujące instalacje:
– elektryczną
– wodno-kanalizacyjną
– centralne ogrzewanie – sieć miejska
Możliwość zawarcia umowy najmu na czas oznaczony 5 /pięciu/ lat lub na wniosek Klienta na czas nieoznaczony.
Podana w ogłoszeniu cena najmu jest kwotą netto.
Uwaga!
Wynajmujący informuje, iż wyremontowany budynek położony przy ul. Szamarzewskiego 21, w tym przedmiot najmu, objęty jest gwarancją Wykonawcy. Wykonanie w przedmiocie najmu robót budowlanych bez zgody Wynajmującego będzie skutkować dodatkowo obciążeniem Najemcy obowiązkiem naprawienia szkody poniesionej przez Wynajmującego w wyniku utraty gwarancji.
![]() |
W celu dokonania oględzin lokalu prosimy o kontakt: |
|
Punkt Obsługi Klienta nr 1 |
||
ul. Ognik 20A, 60-386 Poznań |
||
tel. 61 415-87-01 lub 570 335 058 |
Opiekun oferty
Patrycja Fudalewska - Jasińska
Telefon
Telefon 2