Nadolnik 18B Poznań Polska
Rejon: Zawady
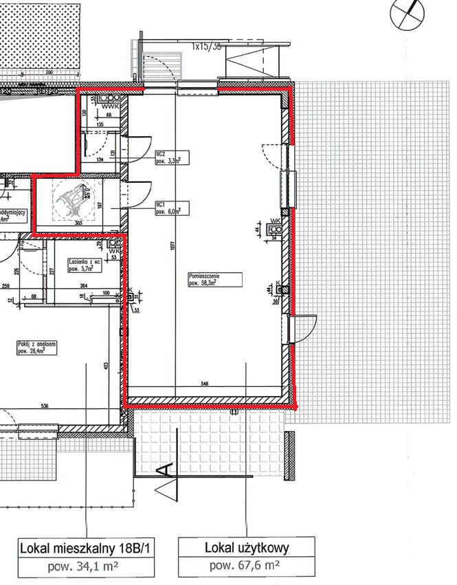
Typ: lokal użytkowy
Cena: 3 380,00 zł netto
Stawka za metr: 50,00 zł
Powierzchnia: 67,70 m2
Powierzchnia przynależna: 0,00 m2
Piętro: parter
Typ zabudowy: blok
Przeznaczenie lokalu: Handlowo-usługowe
Miejsce parkingowe: 3 miejsca przynależne
Wejście: z ulicy
Media: prąd, kanalizacja, woda, centralne ogrzewanie, cepła woda
Typ kaucji: trzymiesięczna
Oferujemy do wynajmu atrakcyjny lokal użytkowy usytuowany na parterze budynku przy ul. Nadolnik 18B o łącznej powierzchni 67,60 m2
Lokal idealnie nadaje się na prowadzenie działalności handlowo – usługowej.
Lokal znajduje się w budynku komunalnym.
Lokal wyposażony jest w następujące instalacje:
– elektryczną
– wodno-kanalizacyjną
– centralne ogrzewanie (sieć miejska)
– ciepła woda
Możliwość zawarcia umowy najmu na czas oznaczony do 5 /pięciu/ lat lub na wniosek Klienta na czas nieoznaczony.
Podana w ogłoszeniu cena najmu jest kwotą netto.
Uwaga!
Wynajmujący informuje, iż nowo wybudowany budynek położony przy ul. Nadolnik 18A, w tym przedmiot najmu, objęty jest gwarancją udzieloną przez Wykonawcę. Wykonanie w przedmiocie najmu robót budowlanych bez zgody Wynajmującego będzie skutkowało obciążeniem Najemcy obowiązkiem naprawienia szkody poniesionej przez Wynajmującego w wyniku utraty gwarancji.
![]() |
W celu dokonania oględzin lokalu prosimy o kontakt: |
|
Punkt Obsługi Klienta nr 2 |
||
ul. Piastowskie 77, Poznań |
||
tel. 61 415-87-02 lub 570-335-234 |
Opiekun oferty
Maciej Wasilewski
Telefon
Telefon 2